Academia Dübendorf
Stettbacherhof 1+4. OG, Dübendorf
Ausgangslage
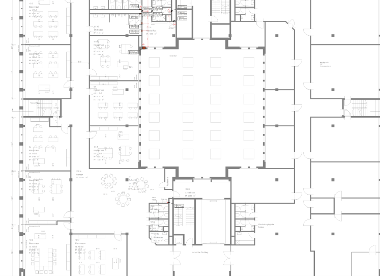
Die bereits im Gebäude vertretene Schule Academia soll die weiteren Mietflächen im 1. und 4. Obergeschoss der Liegenschaft Stettbacherhof in Dübendorf übernehmen. Mit dem Mieterausbau der Mietflächen entstehen diverse Klassenzimmer, Sitzungszimmer und Lehrerzimmer, welche räumlich unterteilt werden.
Konzept
Durch die neuen Raumeinteilungen im 1. Und 4.Obergeschoss sind einige Heizkörper zu ersetzen. Diese werden demontiert und durch neue Heizwände inkl. Ventile mit Thermostatantrieb (nicht elektrisch) ausgerüstet. Die neuen Büroräume und die Cafeteria werden nun mit hygienischer Frischluft von einer Klimaanlage versorgt. Die Klimaanlage wird über die neue Wärmepumpe mit Heizung und Kälte versorgt, dadurch kann ein angenehmes Raumklima sichergestellt werden. Die Wärme bzw. Kälte aus den Räumen wird mittels Kreislaufverbund-Wärmerückgewinnung so weit wie möglich zurückgewonnen. In der Cafeteria erfolgt die Zuluft über Weitwurfdüsen im Aufenthaltsbereich. Die Abluft wird zentral im Küchenbereich gefasst. Das Warmwasser wird wie bei den vorhandenen Nasszellen über ein Elektro-Warmwassererwärmer erzeugt (Unterstellboiler).
Anforderungen
+ Vorprojekt | Bauprojekt | Baubewilligungsverfahren
+ Ausschreibung
+ Realisierung | Fachbauleitung | Inbetriebsetzung, Abschluss
Planungsleistungen
Objektinformationen
Kontakt
Pascal Schüpbach
+41 58 822 84 88
pascal.schuepbach@logus.ch